Nákup na E-shopu je možný pouze pro podnikatele a právnické osoby.

Ochranný rám HF - pozinkovaný 3842567947, 1850x1000, (1ks)

Kód produktu:
BZ567947
Výrobce:
Bosch Rexroth, spol. s r.o.
Dostupnost:
není skladem
4 680,00 
5 662,80 Kč s DPH
ks

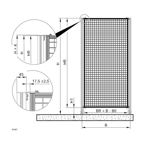
HF - montují se mezi 2 sloupky pomocí závěsných úhelníků.

Ochranný rám z rámového profilu 22,5x45

Materiál rámu: hliník, eloxovaný

Materiál pletiva: ocel, galvanicky pozinkovaná

Rozměry:

HR          1850 mm

B             1000 mm